Select the Indoor Unit Installation Location for Quantum Ultra Ceiling Cassette (CYT-24) SystemsUpdated a month ago
Introduction
This article explains how to select the indoor unit installation location for Quantum Ultra Ceiling Cassette (CYT-24) systems.
Indoor Unit Dimensions
9,000 & 18,000 BTU
24,000 BTU
Select the Location
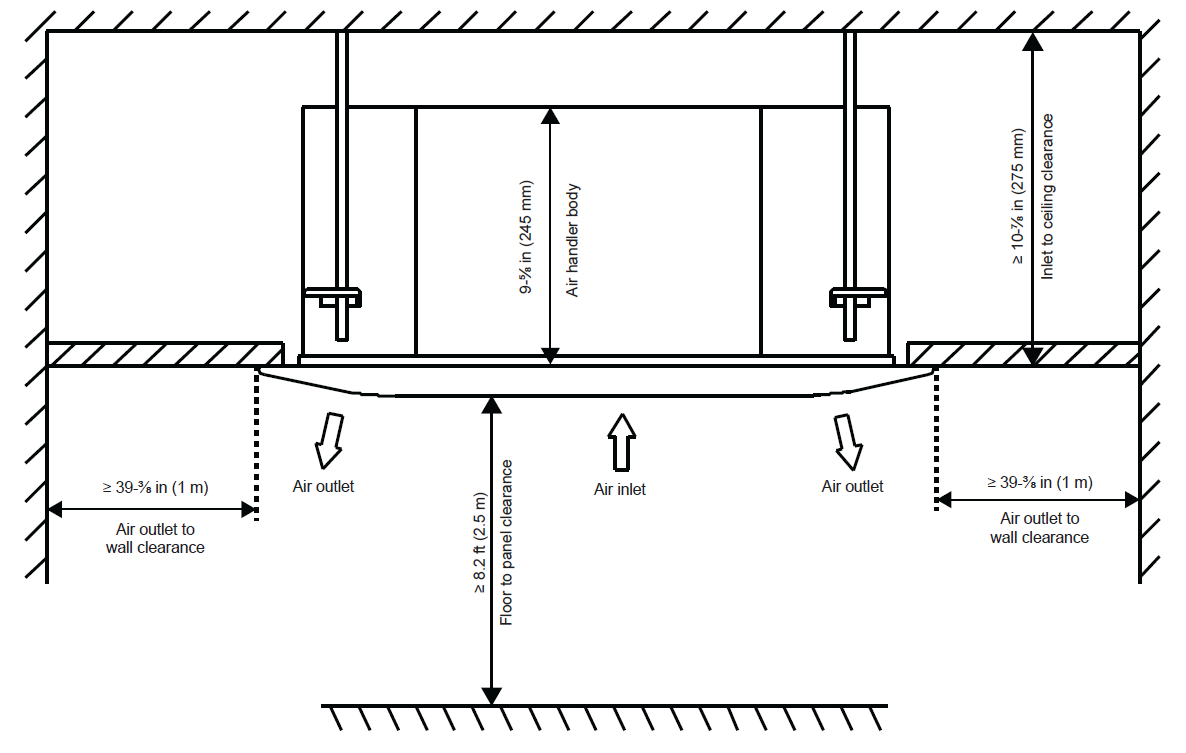
Follow the tolerances depicted in the illustration below:

Position the air handler in the center of the area intended to be air conditioned, ensuring the best air distribution.
Follow these site selection guidelines when installing the indoor unit to prevent malfunction, damage, or hazardous conditions:
Do Not:
- Install the unit in areas where flammable gases may accumulate (e.g., fuel storage areas, chemical plants).
- Install the system in coastal or seaside locations with salty air exposure (unless the system is specifically treated for corrosion resistance).
- Install the unit in environments containing caustic gases such as sulfur compounds near hot springs or industrial zones.
- Mount the unit on surfaces that cannot support its full operational weight such as weak ceilings or unstable walls.
- Install the unit in kitchens or areas heavily exposed to oil fumes, vapors, or grease accumulation.
- Install the unit in areas subject to strong electromagnetic interference such as near factories, radio transmitters, and heavy-duty electrical equipment.
- Install the unit near sources or acidic or alkaline vapors, including industrial cleaners or chemical discharge zones.
- Install the system in tightly enclosed spaces with inadequate ventilation, which may restrict airflow and service access.
- Install the system in high-humidity spaces such as laundry rooms or bathrooms without sufficient moisture control.
- Neglect proper electrical insulation for the air conditioner-building wiring. Installation must comply with national electrical safety standards.
Do:
- Select a location protected from direct sunlight to prevent heat buildup and maintain cooling performance.
- Verify that the structural ceiling or wall can support the unit's weight under full operational load.
- Choose an installation site with a short, direct path for the condensation drain, complying with local building codes.
- Allow adequate clearance around the unit to facilitate proper airflow, operation, and maintenance access.
- Position the unit more than 3 feet (1 m) away from antennas, power lines, telephones, security systems, and other sources of electrical/radio interference.
- Educate the user on proper operation and maintenance procedures, including filter cleaning, basic troubleshooting, and using the provided user manual.