Select the Installation Location for Ducted Ceiling Concealed Indoor UnitsUpdated a month ago
Introduction
This article explains how to select the installation location for ducted ceiling concealed indoor units.
This article is for the following system:
Quantum Ultra Ducted Ceiling Concealed (RYT-24)
For the different dimensions of this system, click this link.
Select the Location
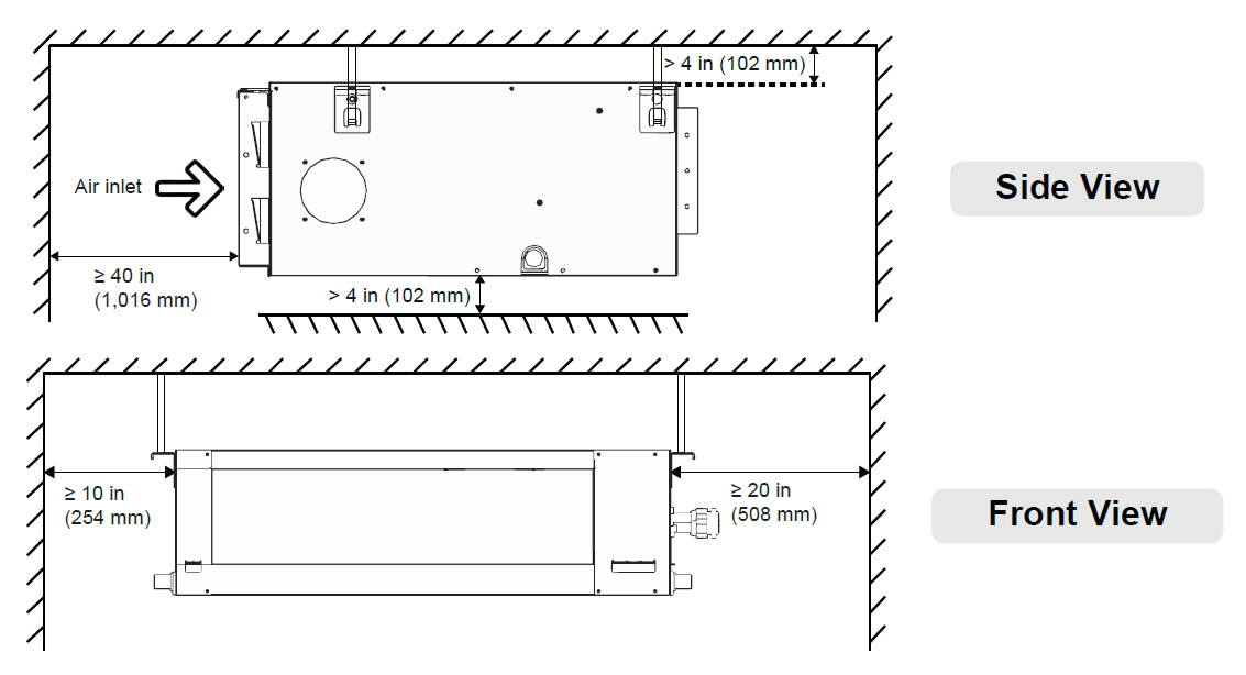
Before starting the installation, select the positions of both the indoor and outdoors units.
Position the air handler in the center of the area intended to be air conditioned, ensuring the best air distribution.
Follow the tolerances depicted in the illustration below:

Follow these best practices for selecting the optimal installation location:
Do Not:
- Install the unit in areas where flammable gases may accumulate (e.g., fuel storage areas, chemical plants).
- Install the system in coastal or seaside locations with salty air exposure (unless the system is specifically treated for corrosion resistance).
- Install the unit in environments containing caustic gases such as sulfur compounds near hot springs or industrial zones.
- Mount the unit in spaces that cannot support its full operational weight such as weak ceilings or unstable walls.
- Install the unit in kitchens or areas heavily exposed to oil fumes, vapors, or grease accumulation.
- Install the unit in areas subject to strong electromagnetic interference such as near factories, radio transmitters, and heavy-duty electrical equipment.
- Install the unit near sources or acidic or alkaline vapors, including industrial cleaners or chemical discharge zones.
- Install the system in tightly enclosed spaces with inadequate ventilation, which may restrict airflow and service access.
- Install the system in high-humidity spaces such as laundry rooms or bathrooms without sufficient moisture control.
- Install the unit in areas with heat sources such as stoves, open flames, or direct exhaust that could affect the unit.
- Install the unit in sites with interferences from outdoor air that could disrupt airflow patterns (e.g., near open windows or vents).
- Neglect proper electrical insulation for the air conditioner-building wiring. Installation must comply with national electrical safety standards.
Do:
- Install the unit in a well-ventilated location with sufficient clearance for proper airflow, maintenance, and servicing.
- Install the unit in a site with a flat and stable surface or ceiling capable of bearing the full operational weight of the unit.
- Install the unit in an area with unobstructed air inlet and outlet paths, ensuring balanced air distribution throughout the room.
- Install the unit in a location that allows for a short, direct path for condensate drainage, in accordance with local building codes.
- Install the unit in an area protected from direct sunlight, which could impair performance or overheat the system.
- Install the unit in a position at least 3 feet (1 m) away from antennas, power lines, telephones, security systems, or other electrical / radio interference sources.
- Install the unit in a location that will permit the airflow to circulate evenly throughout the room, avoiding dead zones or drafts.
- Install the unit in a conveniently accessible area for installation and future servicing needs.
- Install the unit in a site where users can be educated on operation and maintenance procedures, such as cleaning filters and using the control system.