Select the Indoor Unit Installation Location for Vertex Ducted Central Split SystemsUpdated a month ago
Introduction
This article explains how to select the indoor unit installation location for Vertex Ducted Central Split (DYC-18) systems.
Select the Location
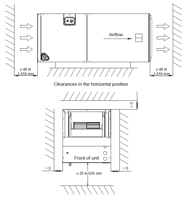
The indoor unit of the Vertex Ducted Central Split system provides installation flexibility, allowing it to be setup in any upward, downward, or horizontal airflow application.
To ensure proper installation, choose a firm and flat site. Ensure enough clearance is reserved for installation and maintenance.
Follow the tolerances depicted in the illustration below:




