Hang the Indoor Unit for CYB-20 Ceiling Cassette SystemsUpdated a day ago
Introduction
This article explains how to hang the indoor unit for CYB-20 ceiling cassette systems.
Steps
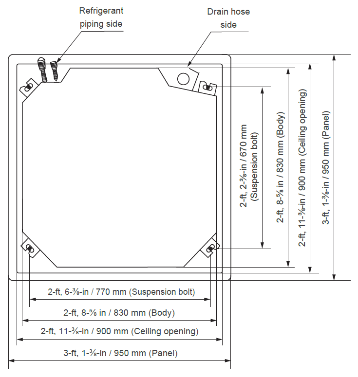
1. Use the included paper template to cut a rectangular hole in the ceiling, leaving at least 3-feet, 3-3/8 inches (1 m) on all sides. The cut hole size should be 16 inches (406.4 mm) larger than the body size.
Be sure to mark the positions where the ceiling hook holes will be drilled.
Refer to the illustration below. 
2. Drill four holes, between 4-3/4~6-1/8 inches (120~155 mm) deep, at the marked ceiling hook positions in the internal ceiling. Be sure to hold the drill at a 90-degree angle to the ceiling.
The unit's body should align perfectly with the hole. Ensure the unit's body and hole are the same size before proceeding. 
3. Use a hammer to insert the ceiling hooks into the pre-drilled holes. Secure the bolt using the included washers and nuts.
4. Install the four suspension bolts. 
5. Mount the indoor unit. This process will require two people to lift and secure the unit. Insert the suspension bolts into the unit's hanging holes. Fasten them using the included washers and nuts. 
Notes:
- The bottom of the unit should be 3/8 of an inch to 1 inch (10~25 mm) higher than the ceiling board. Generally, "L" (indicated in the following figure) should be half the length of the suspension bolt or long enough to prevent the nuts from coming off.

- Ensure the unit is completely level. Improper installation can cause the drainpipe to back up into the unit. The unit is equipped with a built-in drain pump and float switch. If the unit is tilted against the direction of the condensate flow (the drainpipe side is raised), the float switch may malfunction and cause water leakage.

- New Home Installations: When installing the unit in a new home, the ceiling hooks can be embedded in advance. Make sure the hooks do not come loose due to concrete shrinkage. After installing the unit, fasten the installation paper template onto the unit with bolts to determine the dimensions and position of the ceiling opening. Follow the instructions above for the remainder of the installation.
