QHD070 High Performance Dehumidifier (QHD) OverviewUpdated 4 days ago
This article provides the dimensions and weight for the QHD070 High Performance Dehumidifier (QHD).
Full System Model Number
QHD070AUDH26WH
Dimensions & Weight
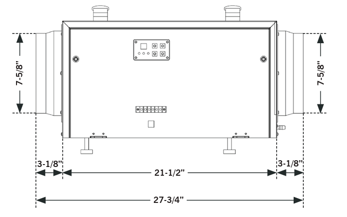
Front & Back
Side
| Width | Depth | Height | Weight |
| 12-5/8 in (321 mm) | 27-3/4 in (705 mm) | 11-3/4 in (298 mm) | 60 pounds |